

Nashua, NH
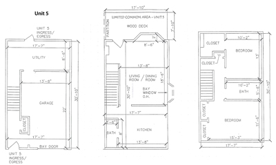
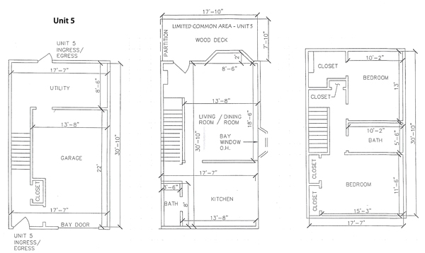
Our Lake Street units are conveniently located a few blocks off Nashua's Main Street. All units include 2 bedrooms, 2 baths, with updated kitchens and bathrooms, new flooring, and off street parking (1 vehicle outside parking per unit and a small garage). Units have in-unit laundry.
Kitchen
Kitchen
Master Bedroom with closets
Full Bathroom
Linen Closet & 2nd Bedroom
Garage
Living Room
Entry
Deck from Living Room
Parking Area